デザインマテリアル事業部
アクリル系人工大理石 シンク一体型手洗いカウンター 化粧棚付き
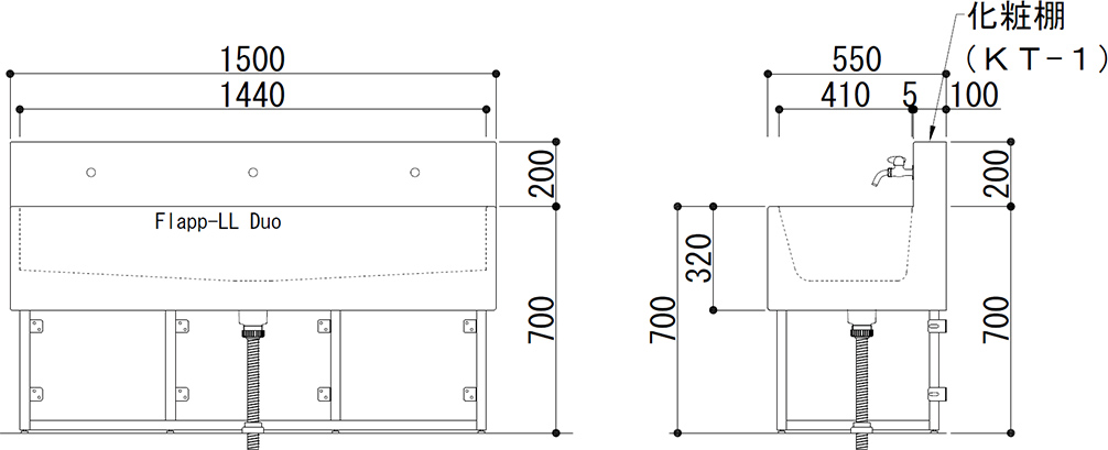
フラップ デュオシリーズ
※
- ※手洗いカウンター部分のみ
こども施設向けフレキシブルシンクシリーズと化粧棚が一体化し、より使いやすくなりました。
「フラップ」シリーズの基本的な特長はこちらをご覧ください。
メンテナンス
人工大理石コーリアン®のメンテナンス方法特長
清潔に使える
壁給水タイプの水栓金具にすることで、カウンターに水が溜まらず、衛生的です。
石鹸や消毒液などを化粧棚に置けるので水にぬれることなく、清潔に保てます。

2種類の化粧棚形状
化粧棚は立ち上がりと甲板が一体となった「KT-1」と甲板が取り外せる「KT-2」の2種類から選べます。
※フラップ キャンチ デュオ・フラップR キャンチ デュオ・フラップES キャンチ デュオはKT-2のみとなります。
KT-1(化粧棚一体型タイプ)
シームレス接着によるスッキリとした見た目で、化粧棚から洗面まで一体となった形状です。
KT-2(甲板取り外しタイプ)
化粧棚の甲板を取り外して上からメンテナンスができる作業性すぐれた形状です。
推奨水栓金具
・ミニセラ万能ホーム水栓「JY125-13」
SANEI株式会社
材料設計価格:¥6,300/個
・ユニット取り出し金具「T2261-13」
SANEI株式会社
材料設計価格:¥4,400/個
※水栓金具を取り付けの際は、ユニット取り出し金具をご使用ください。

製品ラインアップ
フラップR キャンチ デュオ
| ・オーバーフロー |
無し |
|---|---|
| ・対応化粧棚 |
KT-2 |
| ・材料設計価格 |
¥703,000~ |
施工事例
豊島区立長崎保育園
フラップ デュオ
| カウンター |
デザイナーホワイト |
|---|---|
| シンク |
デザイナーホワイト |
| 幕板 |
Cイエロー |
サポート製品
このページと同一カテゴリの商品










