デザインマテリアル事業部
フラップLL
NEW
特長
小学生から使える大きめサイズ
大人もゆったり使える奥行と、バケツも置ける十分な深さを備えています。
R形状のカウンターコーナー
カウンターの端部やコーナー部は角を丸くしたR20のR形状に。体が当たっても痛くない安心設計です。

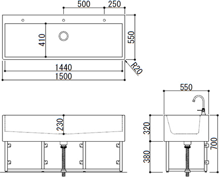
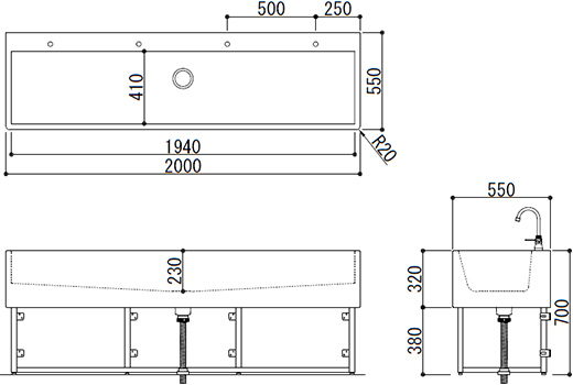
シンク間口は1mm単位で指定が可能
標準サイズは2人用からご用意
フラップ LLはカウンターの幅だけでなく、シンクの間口も1mm単位で指定できるため、設置場所に隙間なくぴったりフィットします。
また、標準サイズはコンパクトなW1,000mmの2人用から、大きなW2,500mmの5人用サイズまで、幅広くラインアップしました。
選べるカウンターカラー60色以上
カウンターカラーはNホワイトを含む60色以上から選ぶことができます。シンクはオリジナルカラーのNホワイトのみ対応しています。
お手入れしやすく衛生的
カウンターとシンクは一体型で、継ぎ目に汚れが溜まりません。また、大きなゴミ受け付きの排水金具はこどもでも掃除が簡単。日常の汚れは水拭きやキッチン用洗剤で拭くだけです。
※油性絵具、油性マジックなどは落ちにくいため、ご使用を控えてください。
ご購入は水栓とセットで
フレキシブルシンクは専用水栓とセットで購入が可能です。小さなお子さまでも簡単に水を出すことができるスイングレバータイプと、衛生面が気になる場所に最適な自動水栓をラインアップしました。
規格・価格
規格
※カウンター寸法は基本サイズ以外にも1mm単位でフレキシブルに対応が可能です。
材料設計価格
| 2人用 (W1,000mm) |
3人用 (W1,500mm) |
4人用 (W2,000mm) |
5人用 (W2,500mm) |
|
|---|---|---|---|---|
| カウンター | ¥570,000~ | ¥583,000~ | ¥772,000~ | ¥798,000~ |
| 脚金物 | ¥242,000~ | ¥281,000~ | ¥303,000~ | ¥314,000~ |
| 合計 | ¥812,000~ | ¥864,000~ | ¥1,075,000~ | ¥1,112,000~ |
- ※脚金物価格はカウンターH700mmの場合
- ※水栓部品・排水部品・特注加工・梱包費・運送費・施工費は別途
- ※排水部品の取付は衛生設備工事
- ※屋外に設置する場合、仕様が一部変更となります。仕様、価格については弊社担当者までお問い合わせください。
カラー
カウンター標準色
コーリアン®全色対応
ハネックス対応色
シンク標準色
印は輸入色です。国内在庫をしておりますが、在庫切れが生じることがあります。ご注文の際は、あらかじめ在庫と納期をご確認ください。
◆手油汚れやキズが他の色に比べて目立ちます。ご了承のうえご選択ください。クリームクレンザーやスコッチ・ブライト™(研磨粒子付)などを使用すると、艶の違いが生じ表面が白くなってしまいますので、使用しないでください。
サポート製品
シックハウス対策について
当製品はF☆☆☆☆(認定:日本建材産業協会)の製品です。
また、素材のコーリアン®には、ホルムアルデヒドをはじめ、厚生労働省のガイドラインである揮発性有機化合物を含んでおりません。
- 取得資格
-
(一社)日本建材・住宅設備産業協会表示登録
発散等級:F☆☆☆☆
放散量区分:4VOC基準適合
※手洗いカウンター部分のみ
メンテナンス
このページと同一カテゴリの商品