アルウィトラ・シーリング事業部
片流れルーバー
インターライン直付け嵌合カラリエ
特長
カスタマイズ可能な片流れルーバー
表面と裏面と底面、各面毎で異なる色や柄にカスタマイズすることが可能。
例えば往路と復路で色の見え方を変えて動線を示したり、使い方はアイデア次第でいろいろです。

背面の嵌合アダプターにも仕上げを施すことで、パーティションのような360°意匠にも対応。
正面:木目※1 側面:ブラック 背面:木目※2
※1 ベントウォールM ※2
プライマリーオークL
例えば往路と復路で色の見え方を変えて動線を示したり、使い方はアイデア次第でいろいろです。


往路:木目※1 復路:ブラック 底面:木目※2 写真はイメージです
※1 フィエノバーチL ※2 ベントウォールM
LED照明の設置で広がるバリエーション
見付面にLED照明を設置することもできるため、ルーバー一体型照明としても活用できます。
(見付幅30と50のタイプのみ対応)

LED照明に取り付けるカバー材もご用意しています。
詳しくはお問合せください。

施工事例
カラー
焼付塗装
フッ素・ウレタン・アクリル
上記はイメージ(日塗工近似色)です。
(色は日塗工番号よりご指定ください)
内部・軒天用オレフィンシート
軽量で剛性にすぐれたオレフィンシート貼り。
下記標準柄以外の特注柄にも対応しています。
木目塗装
シートでは対応が難しい色味調整も可能。
ツキ板
天然木ならではの高い質感とやすらぎのある空間が広がります。
地産材にも対応しております。詳細はお問い合わせください。
- ※指定色による各種、焼付塗装・木目塗装も承ります。詳細はお問い合わせください。
- ※シルバー・二次電解着色は色ムラが発生することもありますが、これらは電解着色の特性ですのでご了承ください。
バリエーション例

木目×ブラック

木目×単色

シルバー×ブラック

ブラック×ゴールド

木目×シルバー

木目×木目

ブラック×シルバー

ブラック×LED
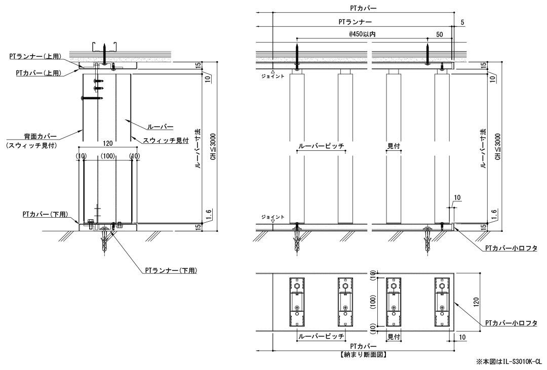
納まり
規格
| 品番 | ラインサイズ(mm) | 標準ピッチ (mm) |
遮へい角 (標準ピッチ時) |
重量 (kg/m2) |
||
|---|---|---|---|---|---|---|
| H | W | L(定尺) | ||||
| IL-S2010K-CL | 100 | 20 | 3,000 | 150 | 38° | 8.7 |
| IL-S3010K-CL | 100 | 30 | 150 | 40° | 9.7 | |
| IL-S5010K-CL | 100 | 50 | 250 | 27° | 7.1 | |
価格
備考
- ●下地は別途となります。
- ●ルーバーの取付ピッチは変更可能です。記載図の取付ピッチは弊社の標準ピッチになります。
- ●全品受注生産品です。納期についてはお問い合わせください。
注意事項
このページと同一カテゴリの商品














