アルウィトラ・シーリング事業部
ニューテクスチャー(天然木周波数再現)ルーバー
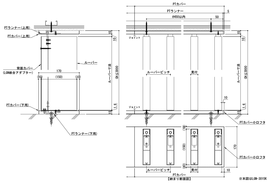
リグナム直付け嵌合
特長
直付けタイプ
天井裏や下地を見せずに、美しく空間演出できます。ルーバーだけが見えるため、スッキリした印象です。
嵌合部を見せないフラットな納まり
アダプターが内部に入りこむため、当社従来品「直付けタイプ」と比較するとよりフラットです。

ロゼッタエンドシステム
端部まで独自のテクスチャーを維持し、表面にビスも見せない美装性にこだわったエンドシステムです。
(オプション部材)
※仕上色は本体近似色塗装となります。

背面テクスチャー
ルーバー全周囲に同一のテクスチャーが施されており、パーティションとして使用してもデザインの一体感を得られます。

パーティション仕様
屋内において上下のみの固定で取り付け可能なパーティション仕様もございます。
詳細は営業担当者へお問合せください。
※写真はイメージです。
カラー
- ※指定色も承ります。詳細はお問い合わせください。
- ※シルバー・二次電解着色は色ムラが発生することもありますが、これらは電解着色の特性ですのでご了承ください。
ルーバーカラーランダム張りプラン「アットランダム」
「アットランダム」は、ランダム張りの色選定にかかる労力を低減するために、自然界の素材をイメージし、調和のとれた4色をランダムに配置した6種類のベースプランをご用意しました。濃淡も選択できるよう、標準(±0)に加え4色の組み合わせ比率を変えた、濃(+2、+1)と淡(-2、-1)もラインアップ。手軽に美しく調和のとれたランダム張りを実現できます。
アットランダムを見る納まり
規格
| LGN-1510K | ラインサイズ | L3,000 H100mm W15mm |
|---|---|---|
| 標準ピッチ | 150mm | |
| 遮へい角 (標準ピッチ時) |
36° | |
| LGN-3003K | ラインサイズ | L3,000 H30mm W30mm |
| 標準ピッチ | 75mm | |
| 遮へい角 (標準ピッチ時) |
34° | |
| LGN-3005K | ラインサイズ | L3,000 H50mm W30mm |
| 標準ピッチ | 100mm | |
| 遮へい角 (標準ピッチ時) |
35° | |
| LGN-3075K | ラインサイズ | L3,000 H75mm W30mm |
| 標準ピッチ | 100mm | |
| 遮へい角 (標準ピッチ時) |
47° | |
| LGN-3010K | ラインサイズ | L3,000 H100mm W30mm |
| 標準ピッチ | 150mm | |
| 遮へい角 (標準ピッチ時) |
40° | |
| LGN-3015K | ラインサイズ | L3,000 H150mm W30mm |
| 標準ピッチ | 150mm | |
| 遮へい角 (標準ピッチ時) |
51° | |
| LGN-5015K | ラインサイズ | L3,000 H150mm W50mm |
| 標準ピッチ | 300mm | |
| 遮へい角 (標準ピッチ時) |
31° |
価格
備考
注意事項
このページと同一カテゴリの商品











